SOUTHEASTERN AVE HOUSE: INDIANAPOLIS, IN_2018
Safety Auto Glass is an icon in the city of Indianapolis. For many years, a wrecked Indy 500 car was a part of the sign. My client purchased the building and the plan was to add a residence to the existing garage. Southeastern Ave. has a diagonal orientation directly to the center of Indianapolis. The building is set at a 90 degree Cartesian orientation so the addition followed suit. I decided to run the angle of Southeastern Ave. ran parallelly through the Residence to interrupt the box and open it up to the sky.
Residence: Southeastern (site plan)_2018 Indianapolis, IN
ORIGINAL SIGN
Residence: Southeastern (before)
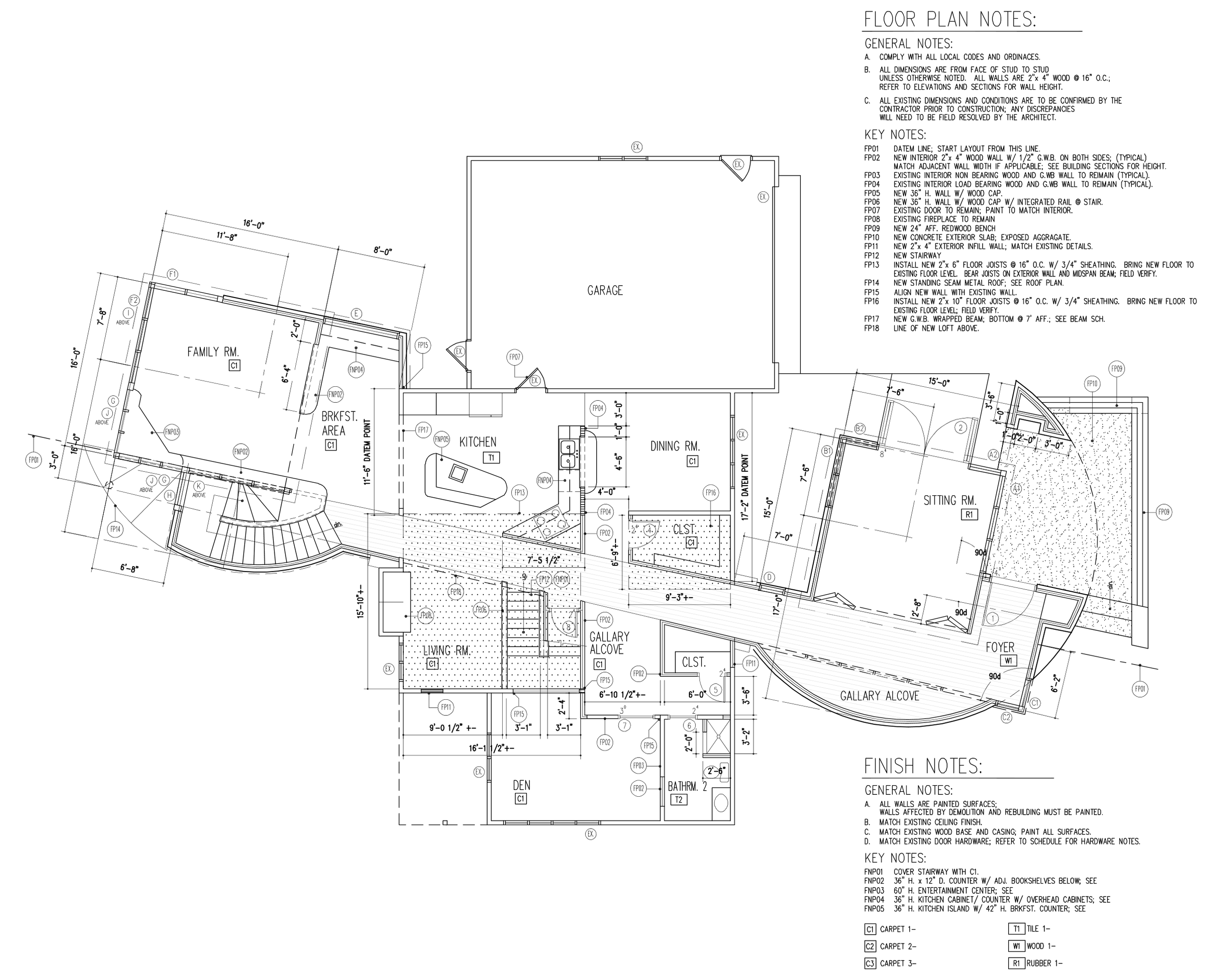
Residence: Southeastern (floor plan L-1)
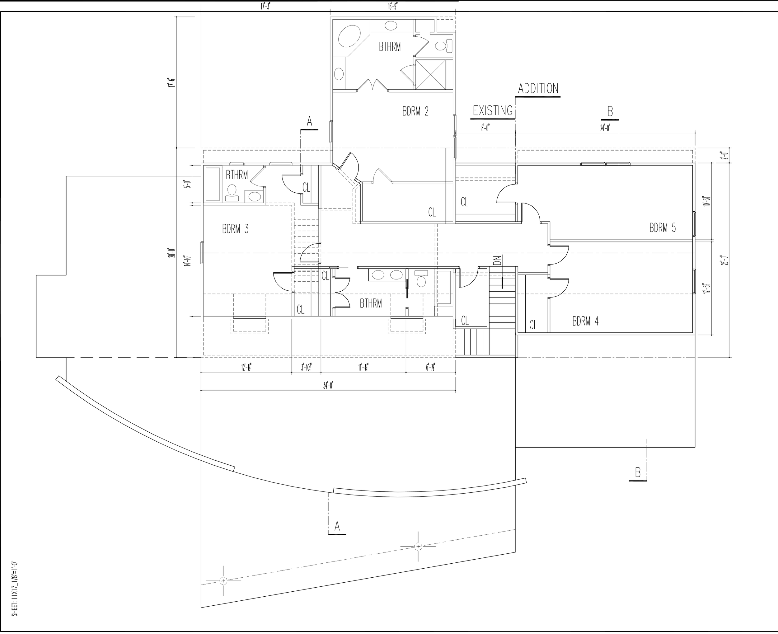
Residence: Southeastern (floor plan L-2)
Residence: Southeastern (whitebox)_2018 Indianapolis, IN
Residence: Southeastern (view toward downtown)
Residence: Southeastern (whitebox)_2018 Indianapolis, IN
Residence: Southeastern (whitebox)_2018 Indianapolis, IN
517 Prospect 3-plex (Paradigm)_2023 Indianapolis, IN
prospect 3-plex 2023_ (whitebox) Indianapolis, IN
prospect 3-plex 2023_ (whitebox) Indianapolis, IN
prospect 3-plex 2023_ (whitebox) Indianapolis, IN
prospect 3-plex 2023_ (whitebox) Indianapolis, IN
‘Slow Curve in D minor’
6509 Dean Rd Prospect; (Paradigm)_2022 Indianapolis, IN
This existing house on Dean Rd was a humble building, built years gone by. Currently, the new houses on Dean Rd are in the $1,000,000 + range. The plan by the developer was to create an addition that has an open living area with sufficient bedrooms and bathrooms among the Wishlist to compete with the current builds. My thoughts? The addition needs to go in front of the house and makes a statement… thus, ‘Slow Curve in D minor.’
The Maranto Residence
Zionsville, IN_1999
The Maranto Residence: An existing rectilinear building with an open field of grass to the front of the building facing north and a dense wooded hill to the rear, facing south. Chuck had an extensive collection of abstract art; Calder, Miro, Escher… and a collection of exotic cars. The residence needed to house his family, display his art and cars and interact with the nature that surrounds the building. A yokomen long flow movement with a tsuki, a piercing cut through the building… My friend, Miles who introduced me to Chuck is a skilled designer and he told me, this was my best work.
Existing Front
Existing first floor PLAN
Existing Rear
Floor Plan 1
